AN OUTSTANDING FARMHOUSE WITH EQUESTRIAN FACILITIES.
Nestled on Pinch Clough Road in the picturesque Rossendale, Shadlock House is a remarkable four-bedroom detached farmhouse that offers a unique blend…
AN OUTSTANDING FARMHOUSE WITH EQUESTRIAN FACILITIES.
Nestled on Pinch Clough Road in the picturesque Rossendale, Shadlock House is a remarkable four-bedroom detached farmhouse that offers a unique blend of luxurious living and equestrian facilities. Set within approximately 9.5 acres of stunning countryside, this property is a true haven for those seeking space and tranquillity.
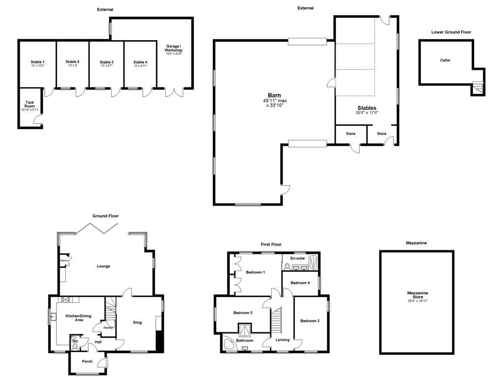
The farmhouse boasts an impressive array of features, including a detached barn and stables, as well as a versatile stable/garage/workshop block. The interior of Shadlock House is finished to an exceptional standard, showcasing underfloor heating throughout the ground floor and in the first-floor bathrooms, alongside hardwood double glazing and a bespoke, handmade kitchen. The beautifully appointed interiors create a warm and inviting atmosphere, perfect for family living.
Outside, the property is equally impressive, featuring a westerly-facing walled garden that offers delightful views and a serene spot to enjoy breath-taking sunsets. Ample hard-standing parking ensures convenience for residents and guests alike. The surrounding land is ideal for equestrian pursuits, smallholding, or simply enjoying the great outdoors, with a footpath connecting to the Mary Towneley Loop for those who appreciate walking and nature.
Shadlock House is conveniently located at the head of West View Road, providing easy access to main roads and public transport links. The semi-rural setting offers a peaceful retreat while still being within close proximity to the vibrant towns of Rawtenstall, Burnley, Todmorden, Rochdale, and Bury. Manchester is just 20 miles away, making this property an excellent choice for those who desire a rural lifestyle without sacrificing connectivity.
In summary, Shadlock House is a splendid property that combines high-quality living with extensive outdoor facilities, making it an ideal choice for families, equestrian enthusiasts, or anyone seeking a tranquil yet contemporary home.
2.92m x 1.80m(9'7 x 5'11)
Hardwood double glazed front door, hardwood double glazed window, cast iron central heating radiator, wood panelled elevations, stone flag flooring and hardwood single glazed stable door to hall.
3.00m x 1.35m(9'10 x 4'5)
Spotlights, wood cladding to ceiling, wood panelled elevations, stone flag flooring with underfloor heating, oak doors leading to snug, WC and open to kitchen/dining area.
1.35m x 0.79m(4'5 x 2'7)
Hardwood single glazed frosted window, dual flush WC, wall mounted wash basin with mixer tap, wood panelled elevations, spotlights and stone flag flooring with underfloor heating.
4.67m x 5.41m(15'4 x 17'9)
Two hardwood double glazed sash windows, central heating radiator, range of panelled wall and base units with marble work surfaces, tiled splashback, double Belfast sink with high spout spring mixer tap and boiling water tap, four door Leisure range cooker with five ring induction hob, integrated extractor hood, space for fridge freezer, integrated dishwasher, spotlights, stone flag flooring with underfloor heating and hardwood door to pantry.
1.27m x 1.19m(4'2 x 3'11)
Integrated shelving, stone flag flooring with underfloor heating and door to stairs to lower ground floor.
4.65m x 3.89m(15'3 x 12'9)
Two hardwood double glazed sash windows, central heating radiator, cornice coving, ceiling rose, cast iron open coal fire with stone hearth, wood effect tiled flooring with underfloor heating, oak single glazed door to lounge and solid wood sliding door to stairs to first floor.
8.00m x 5.28m(26'3 x 17'4)
Hardwood double glazed sash window, three aluminium double glazed windows, central heating radiator, cast iron multifuel burner with slate hearth and oak mantel, television point, storage cupboard, spotlights, wood effect tiled flooring with underfloor heating and aluminium double glazed bi-folding doors to rear.
4.39m x 3.63m(14'5 x 11'11)
Power, lighting, plumbing for washing machine and space for dryer.
4.65m x 2.39m(15'3 x 7'10)
Hardwood double glazed sash window, central heating radiator, loft access, oak doors leading to four bedrooms and bathroom.
4.47m x 3.58m(14'8 x 11'9)
Two hardwood double glazed sash windows, central heating radiator, television point, two fitted wardrobes with oak double doors and oak sliding door to en suite.
3.10m x 1.35m(10'2 x 4'5)
Hardwood double glazed sash window, heated towel rail, dual flush WC, double vanity top wash basins with mixer taps, double direct feed rainfall shower enclosed, tiled elevations, spotlights and tiled flooring.
4.80m x 3.05m(15'9 x 10'0)
Hardwood double glazed sash window and central heating radiator.
4.72m x 2.95m(15'6 x 9'8)
Two hardwood double glazed sash windows and central heating radiator.
3.15m x 2.08m(10'4 x 6'10)
Hardwood double glazed sash window and central heating radiator.
4.11m x 2.18m(13'6 x 7'2)
Two hardwood double glazed sash windows, upright central heating radiator with mirror, dual flush WC, vanity top wash basin with mixer tap, double direct feed rainfall shower enclosed with rinse head, corner bath with mixer tap, tiled elevations, acoustic panelled elevations, two extractor fans, spotlights, pendant lighting, LED illuminated mirror and tiled flooring.
Approximately 9.5 acres of land, walled gardens, open aspect views, hard-standing off road parking, access to stables, garage/workshop and barn.
75 Bank St, Rawtenstall, Rossendale, BB4 7QN.