Haslingden Old Road, Oswaldtwistle, Accrington

£1,950,000

A FANTASTIC DEVELOPMENT OPPORTUNITY WITH PLANNING PERMISSION GRANTED

Commanding a prime location on Whitecroft Road, just off Haslingden Old Road, in the charming area of Oswaldtwistle, Accrington, this…

  • Fantastic Development Property
  • Planning Permission Granted
  • Additional land available subject to further negotiation
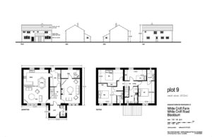
  • Nine Dwellings
  • Excellent Location
  • Bursting with Potential
  • Close to Local Amenities
  • Tenure Freehold
  • Council Tax Band E
  • EPC Rating TBC

A FANTASTIC DEVELOPMENT OPPORTUNITY WITH PLANNING PERMISSION GRANTED

Commanding a prime location on Whitecroft Road, just off Haslingden Old Road, in the charming area of Oswaldtwistle, Accrington, this exceptional development property presents a remarkable opportunity for investors and developers alike. With planning permission already granted, the site is poised for the creation of nine stunning dwellings, with additional land available subject to further negotiation.

The proposed plans include the conversion of the existing stone-built barns, which will be transformed into beautiful family homes, alongside the demolition and reconstruction of the additional dwellings. This project promises to deliver substantial residences that blend modern living with the character of the surrounding countryside.

Situated in a prime semi-rural location, the property offers the perfect balance of tranquillity and convenience. Residents will enjoy easy access to the nearby towns of Oswaldtwistle, Blackburn, and Haslingden, ensuring that essential amenities and services are within reach. Furthermore, the M65 motorway network is just a short distance away, providing excellent transport links for commuting and travel.

This is a unique chance to invest in a property that not only offers significant potential for development but also the opportunity to create a thriving community in a desirable location. For further information and additional details, please do not hesitate to contact us or visit the Hyndburn planning portal. This is a development opportunity not to be missed.

For the latest upcoming properties, make sure you are following our Instagram @keenans.ea and Facebook @keenansestateagents

Unit 1

Existing Farmhouse

Unit 2

PROPOSED - 1 Bed Semi-Detached with Garage. 76m2

Unit 3

PROPOSED - 3 Bed Semi-Detached with 1 Bed self-contained annexe. 177m2

Unit 4

PROPOSED - 3 Bed Semi-Detached. 135m2

Unit 5

PROPOSED - 4 Bed Semi-Detached. 194m2

Unit 6

PROPOSED - 4 Bed Semi-Detached. 194m2

Unit 7

PROPOSED - 3 Bed Detached Bungalow. 129m2

Unit 8

PROPOSED - 4 Bed Detached. 189m2

Unit 9

PROPOSED - 4 Bed Detached. 189m2

Read more

  • Fantastic Development Property
  • Planning Permission Granted
  • Additional land available subject to further negotiation
  • Nine Dwellings
  • Excellent Location
  • Bursting with Potential
  • Close to Local Amenities
  • Tenure Freehold
  • Council Tax Band E
  • EPC Rating TBC

Contact the agent

  7 Blackburn Rd, Accrington, BB5 1HF.


Location

Use one of our helpful calculators

years
%

Your approximate mortgage cost is:

£0/month

Stamp duty to pay is:

£0

What's nearby?

Similar properties

We’re proud to be a part of