• 3 Bed
  • 1 Bath
  • 2 Receptions

Aspen Lane, Oswaldtwistle, Accrington

£280,000 Offers Over

CHARMING THREE BEDROOM COTTAGE WITH GARAGE AND DRIVEWAY

Located in the sought after location of Aspen Lane, Oswaldtwistle, this delightful three-bedroom cottage offers a perfect blend of modern…

  • Exceptional Detached Cottage
  • Three Bedrooms
  • Four Piece Bathroom Suite
  • Contemporary Fitted Kitchen
  • Bursting with Character and Charm
  • Stunning Gardens to Front and Rear
  • Off Road Parking and Garage
  • Tenure Freehold
  • Council Tax Band D
  • EPC Rating D

CHARMING THREE BEDROOM COTTAGE WITH GARAGE AND DRIVEWAY

Located in the sought after location of Aspen Lane, Oswaldtwistle, this delightful three-bedroom cottage offers a perfect blend of modern comfort and country charm. As you step inside, you are greeted by a stunning country-style kitchen that serves as the heart of the home, ideal for family gatherings and culinary adventures. The property boasts two spacious reception rooms that are bright and open, providing ample space for relaxation and entertainment.

The cottage features three generously sized bedrooms, each designed with tasteful decor that creates a warm and inviting atmosphere. Additionally, there is a versatile loft room that can be used as a study, playroom, or guest accommodation, catering to the needs of a growing family. The four-piece bathroom is well-appointed and ready for immediate use, ensuring convenience for all.

Outside, the property is complemented by a beautiful garden, perfect for enjoying the outdoors or hosting summer barbecues. The garage and driveway to the side of the property offer off-road parking, adding to the practicality of this lovely home.

Situated in a great location, this cottage is not only a perfect family home but also a wonderful opportunity for those seeking a peaceful yet accessible lifestyle. With its charming features and move-in ready condition, this property is sure to impress. Don’t miss the chance to make this delightful cottage your new home.

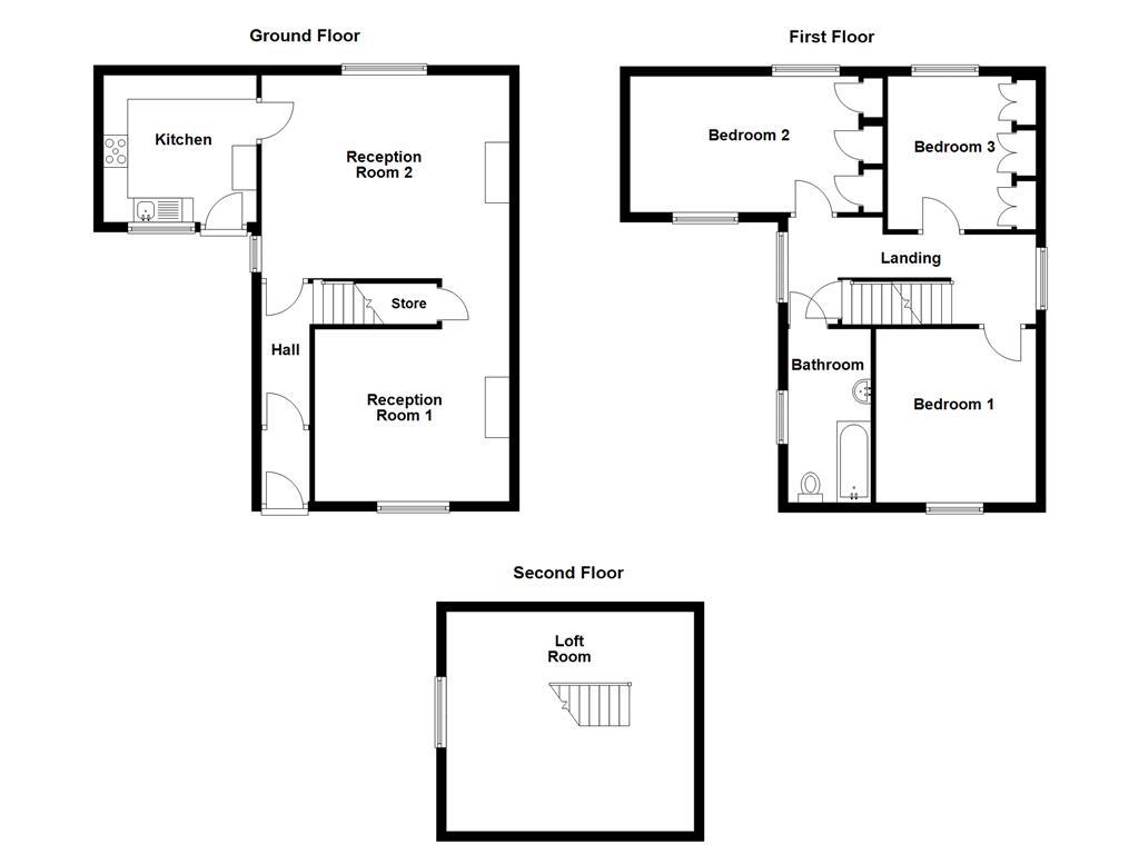
Ground Floor

Entrance Vestibule

1.47m x 0.99m(4'10 x 3'3)

Composite double glazed frosted front door, coving, tiled flooring and door to hall.

Hall

2.92m x 0.99m(9'7 x 3'3)

Central heating radiator, coving, wood effect flooring, door to reception room two and stairs to first floor.

Reception Room Two

5.28m x 4.19m(17'4 x 13'9)

Two UPVC double glazed windows, two central heating radiators, coving, Gas stove, television point, doors to kitchen, under stairs storage and open to reception room one.

Reception Room One

4.01m x 3.56m(13'2 x 11'8)

UPVC double glazed window, two central heating radiators, central heating radiator, coving and electric stove.

Kitchen

3.18m x 3.05m(10'5 x 10'0)

UPVC double glazed window, range of panelled wall and base units with wood effect work surfaces, tiled splashback, under unit lighting, ceramic sink and drainer with high spout mixer tap, range cooker with five ring gas hob and integrated extractor hood, integrated fridge freezer, plumbing for washing machine, plinth heater, wood effect flooring and composite double glazed frosted door to rear.

First Floor

Landing

5.13m x 1.88m(16'10 x 6'2)

Two UPVC double glazed windows, central heating radiator, doors leading to three bedrooms, family bathroom and stairs to second floor.

Bedroom One

3.48m x 3.33m(11'5 x 10'11)

UPVC double glazed window and central heating radiator.

Bedroom Two

5.36m x 2.77m(17'7 x 9'1)

Two UPVC double glazed windows, central heating radiator and fitted wardrobes.

Bedroom Three

2.87m x 2.77m(9'5 x 9'1)

UPVC double glazed window, central heating radiator and fitted wardrobes.

Bathroom

3.45m x 1.93m(11'4 x 6'4)

UPVC double glazed frosted window, central heated towel rail, wood panel bath with mixer tap and rinse head, dual flush WC, pedestal wash basin with traditional taps, direct feed shower enclosed, partially tiled elevations, wood cladding to ceiling, spotlights, extractor fan and tiled effect flooring.

Second Floor

Loft Room

5.08m x 4.55m(16'8 x 14'11)

UPVC double glazed window.

External

Rear

Enclosed laid to lawn garden, slate chippings, bedding areas and paving.

Front

Paving, bedding areas, driveway to side elevation and access to garage.

Read more

  • Exceptional Detached Cottage
  • Three Bedrooms
  • Four Piece Bathroom Suite
  • Contemporary Fitted Kitchen
  • Bursting with Character and Charm
  • Stunning Gardens to Front and Rear
  • Off Road Parking and Garage
  • Tenure Freehold
  • Council Tax Band D
  • EPC Rating D

Contact the agent

  7 Blackburn Rd, Accrington, BB5 1HF.


Location

Use one of our helpful calculators

years
%

Your approximate mortgage cost is:

£0/month

Stamp duty to pay is:

£0

What's nearby?

floorplan

Property EPC 1

Similar properties

We’re proud to be a part of